刘国平1,牛俊玉1,李志彬1,张保亮1,张立新1,时宗胜2
摘要:提出并研究了一种以专业的图形化设计管理软件VisualNet为平台,无需编程和二次开发,进行电力通信资源管理系统的构建过程。介绍了电力通信设备图库的建库方法、设计过程,以及怎样利用该系统进行设备查询定位、资产统计管理等操作。由于本软件是基于VisualNet平台设计的,所以其拥有了其它从底层开发的软件所无法比拟的快速实现过程、图形化设计效果和便捷的管理功能。
关键词:VisualNet; 无需编程; 图库模板; 模块化设计; 通信资源管理系统
在电力通信资源管理系统中,光缆、通信线路、设备、机房是我们管理的重点。它具有一个明显的特征是:设备线路的分布范围广、设备间存在复杂的连接关系、技术参数多而复杂,既难于理解又不便管理。它们带来一系列难以直观理解的问题是:它是什么?它在哪里?怎么配置?怎样连接?与谁连接?有哪些技术参数?故障设备在哪个位置?从上层设备到终端要经过哪些路由?人员岗位调动后如何让资料能完整保存下来?新接手的工程师如何能快速掌握系统结构?哪些设备需要更新换代?哪些设备需要去定期检修?.....
每天我们都在和这些成百上千的设备与数据信息打交道,但是我们很难对这些复杂系统中所有的设备、参数、使用状态、资产信息等做到了如指掌,很难找到一条有效的途径来管理这些日益复杂和离散的系统。缺少对这些基础设施的配置和资源使用状况的了解,导致设备宕机时间延长、检修效率低下、资产不明流失、投资重复浪费、文档资料缺失以及各种管理成本、维护成本和人力成本的增加。因此,开发制作一套便捷实用的电力通信资源系统就显得十分必要。
目前对电力通信资源的管理,常见的有以下三类软件和两种实施方式:
第一是制图软件:线路图主要用CAD 软件绘制。绘图质量虽然较好,但一般不具备设备管理与查询功能。图中的每个设备线路的相关信息无法清晰完整地表达出来。即使采用附注方式写到图纸上,其信息量也有限,而且也影响图纸美观。另外也要求使用人员对CAD比较熟悉,对人员技术要求较高。
第二是MIS类的数据库管理系统:它的主要特点是管理设备的数据信息比较方便,但是缺少直观的图形表达方式。对设备在哪儿、怎么连接、外观是什么样的等等信息都无法清晰地表达出来,这是目前这类软件的通病。从发展的眼光来说,这类软件已有逐步淘汰的趋势。
第三是基于GIS地理信息类的资源管理软件:它的主要优势是利用地图数据对线路进行地理信息、地理位置的管理。但同时它的缺点也相当明显,就是应用面狭窄、开发成本、后期维护成本都很高,实施周期长,对设备细节管理方面的功能很弱,对使用人员的要求也高。大家用过GIS系统的都知道,如果我们想从顶层地图开始一直管理到第八层图纸,那么你只有把一至八层所有区域的地理数据全部收集完整,才能达到精细管理线路的目的。显然这么庞大的地理数据,无论从投资成本、研发周期还是后期地理数据的更新上都是令人难于承受的。即使你把这么多层的地理数据目前都搜集完整了,但是有些区域我只需要管理到第三层信息,有些区域我要管理到第十层信息还不够用,显然对第三层数据来说,后面的地理数据是冗余的,但是对第十层数据来说又是不够用的,这就造成了GIS系统本身在地理数据采集更新方面进入了一个怪圈。但是如果做不到这么细,那么所谓的精确的地理信息的管理也就变成了空话,基于GIS的应用也就失去了基础。另外还有一个最重要的因素,那就是我们实际管理过程中,光是管理设备线路的地理信息是远远不够的,还有很多的设备技术参数、设备端口之间的连接关系、机房管理等技术细节,还是无法通过GIS系统来进一步实现。GIS应用的缺陷性,严重困扰了已经用GIS系统实施或准备用GIS去实施的技术人员和管理人员,使得GIS类通信资源管理系统的软件使用价值大大降低。
就研制实施上述的资源管理系统来说,目前有以下两种常见方式:
一是利用VC、VB、Delphi 等开发工具从最底层起开发。这种开发模式工作量大、周期较长、功能有限、后期维护升级困难,实在是一种少、慢、差、费的开发方法。
二是以CAD、GIS等软件为平台,利用AutoLisp、VBA 或GIS组件进行二次开发。但是虽然这种二次开发已较第一种方法节省了大量的时间和精力,但它们的开发机制仍然不够简单,需要做大量的调研、数据结构的设计、运行测试等工作,开发起来仍不轻松,更新维护同样也困难。
有没有既不需要编程或二次开发,又能根据不同的通信系统结构,快速搭建起一套图文并茂的、具有分析管理、查询定位功能的资源管理系统呢?现在通过笔者的多次试验和对比,认为Wonderful公司的“VisualNet图形化的设计与设备线路资源管理平台”软件能很好地满足我们的要求。VisualNet本身是一个开放式的资源管理系统开发平台,功能强大、无需编写任何代码,即能对电力通信系统中的设备线路资源进行图纸设计和数据信息的管理。把我们原先专注于怎么开发软件、怎么构建数据库之间的关系,变成了专注于实际的通信结构的设计和数据录入上,大大减轻了工作强度,缩短了实施周期、降低了实施费用,轻松地达到管理目的。
本文主要概括描述了VisualNet的特点,以及介绍了我们如何采用VisualNet 平台来进行本地区的通信线路资源管理系统的实施构建、设备线路的数据信息的查询管理、搜寻定位、资产管理等。在最后还展示了通过该软件所设计的一个具体的通信资源管理项目,希望能为已经实施或准备实施类似通信资源系统的同行起到抛砖引玉的作用。
VisualNet是一套把图形、数据、相互关系三者有机地结合起来的集画图、文档制作以及图形化管理为一体的软件。但它与你用过的一般图形处理软件有相当大的不同,用VisualNet创建的文档,每个对象能感知出其特有的属性,体现了全新的信息管理手段:
■ 图形:能使你从枯燥的数据中解脱出来,从世界范围乃至极小的单个部件,都能极大地可视化你的系统。
■ 数据:给VisualNet的每个图形都注入了智能性,让你看到仅从一张图片上所看不到的无穷的信息。点击组成整个系统的每个部件或线路,就能得到所有你想知道的数据。
■ 关系:或称为线路,它是网络线路的根本。VisualNet能够超越单个页面的限制,看到各个对象之间的物理连接或逻辑关系。
VisualNet具有以下功能特点:
•丰富的设备图库模板、“搭积木”式设计方式:
系统把所有设备、线路当作对象来处理。只需从模板库中拖拉图库模板,就可完成图纸的设计工作。模板化的设计方式,减轻了你在制图上的烦琐劳动,便于您更加关注于具体的资源管理系统的结构设计和信息需求。
•层次化的项目管理方式:
通过分页、分层的方式,来实现项目从广域网的管理一直到微观的设备端口和光纤熔接信息的管理,并且可以跳转查看任意层面技术细节。
•图形与数据的无缝集成:
图上的每个节点、线路对象都内置存储各种属性信息、相互连接关系和业务信息,使图上的每个对象都具有“智能”性,并且都能被搜索、查询和定位。
•智能化的路由分析:
点击任意一根线条或端口,系统都能找到整条链路上的设备路由和经过的端口。能跟踪任意设备间的连接关系,帮助您透彻了解整个设备链路。
•图层间连接与复合视图:
不同页面的图纸之间能自动创建链路、能相互访问、跳转,并且还能在同一窗口中把多个图的集中到一起去管理,便于您从更高角度看清各个图中设备之间的连接。
•任意层设备资源统计:
可以是按区域、站点、建筑物、楼层、部门、房间、设备类型等等进行分类、分区域统计,便于了解和掌握各地区的设备资产的使用状况和具体信息。
•数据驱动图形:
当设置的数据发生变化时,图形的外观、颜色、线条粗细等也自动发生变化,便于您识别不同的设备线路的数据状态。
•与外部程序文档的协同工作能力:
每个图形、线缆、属性数据都具有双击事件功能。选择设定不同的数据值,可以执行相应的操作。如:打开关联的电子文档、调用设备检测管理程序、运行系统命令、发送电子邮件、访问设备厂家网站等。
为实现绘图功能,VisualNet系统本身提供了足够多的专业设备实物图、逻辑图等模板,譬如有:光缆、分接箱、铁塔、光纤分配盒、机柜、电缆接头、交换机、数字配线架、光端机等等。但有时可能由于我们机房内的设备比较特殊或不常见的缘故,就需要进行自定义。一旦我们制作完这些图库,以后需要绘图时,就可以直接用鼠标把图库模板拖拽到绘图区,通过适当的连接就可完成通信线路图的绘制,绘图过程十分简单和高效。
目前我们自定义的图库及其属性有:
站点:主要有分电压等级的变电站、调度中心、办公场所等几种。其属性有;站点类型、电压等级、经度、纬度、联系电话、地址、维护单位、所在县、业务统计等。
杆塔:杆塔类型、杆塔型号、经度、纬度、线路名称、电压等级、前杆距、后杆距、转角度数、前面跨越、后面跨越、光缆接头、光缆耐张等。
光缆:起点、终点、光缆类型、芯数、长度、线路名称、电压等级、敷设方式、光缆厂家、光纤类型、光纤标准、杆路图、测试数据表、距离机房距离、跨度、接头位置等。
光纤分配盒:资产编号、位置、厂家、光缆芯数等
光端机:资产编号、型号、同步数字标准、设备厂家、投运时间、环网站点1、环网站点2、环网光口容量、分支站点1、分支站点2、分支光口容量等。
PCM:资产编号、型号、设备厂家、投运时间、工作方式、对端站点等。
通信电源:资产编号、分为交流输入单元、交流输出单元、监控单元、整流单元、直流输出单元等5部分的属性
设备卡板、模块等属性。
还有其它的机房设备:如数模配线架、机柜:蓄电池、各种线缆等不在此一一列出,其属性的定义方法也同上面类似(如下图一所示)。

(图一:模板与属性定制)
每一个新的项目都是在一张空白的页面上开始的,首先要做的事就是导入一张底图,其目的是让设计的各种设备节点对象、线路对象有个相对参考的排放位置。一般背景图包括:地图、房屋建筑图、楼层平面图、机柜照片等。文件格式可以是矢量图或位图,如EMF、WMF、JPG、GIF、BMP等。地图我们可以通过扫描纸质地图、从网上搜寻GIS地图或是GOOGLE地图后拼合起来进行。对于已经有的CAD楼层平面图,你可以把它们转化成上述文件格式后使用。
底图背景确定以后,你就可以从前面制作的图库中,拖拉模板节点到当前设计页面上进行位置布局,譬如铁塔、站点等。这些节点图形代表了一系列的“实物”。
双击某个节点,可以对该“实物”做细化设计。一般情况下,我们采用从顶层到底层的方式进行设计,譬如,从区域---建筑---楼层---房间—机柜(机架)---设备---端子等。
创建完各种 “设备” 节点后,我们就要用“电缆”、“光缆”对各个“设备”进行连接,也就是创建各节点设备之间的连线。如下图二所示,我们建立了广域网的光缆分布图、线路走向图、建筑物之间的电缆图、机房内设备之间的连接图。

(图二:设备与线路图的制作)
值得一提的是,VisualNet的节点之间的连接线路是只需一步操作即能完成的,比起其它的制图软件的画线要方便的多。同时它还具备了不同图纸之间的设备线路连接功能,便于您能从本页图纸上,快速跳转到其它设计图上,这也是很多图形软件所不具备的。
我们知道,像在CAD之类的绘图软件上画图,如果我们要对该图形进行信息的描述,可能更多采用的办法是在旁边添加“备注”之类的文本,但是如果有很多信息需要描述时,采用这种方法就显得很笨拙、麻烦。
而VisualNet由于采用了图形与数据信息集成的方式,每个图形节点或线缆都具备各自的数据属性。您要做的工作就是打开属性窗体,在窗体中输入关心的数据即可。
譬如,点击“光缆”,其数据属性有:编号、名称、类型、起点、终点、芯数、长度等信息字段。点击某个字段,输入数据后按回车键即可保存下来,以后只要该图形数据符合查询条件,它们都能被系统搜索到。
同样的,如果点击“光端机” 其相关的数据属性如:型号、生产厂家、同步数字标准、投运时间、环网站点、环网光口容量、分支站点等信息都能被显示出来进行修改。
另外,对于一些重要敏感的数据,我们还可以对其进行隐藏,在需要的时候把它们显示出来,以防信息被泄密。
在实际项目中,我们可能还需要调阅其它的电子文档,譬如测试数据、检修报告、工程合同、业务统计报告等等。在本系统中,VisualNet为我们提供了一个双击事件功能。你可以通过双击一个节点、一根线、一个属性字段,就能就能打开相关的文档、访问厂家网站、调用监控系统、读取专家辅助系统数据和设备管理台帐信息等,很好地把和系统关联的资料都整合到了一起。例如单击一站点,就能在属性窗体中显示该站点的一个叫“业务统计”的属性字段。双击该字段就能调用该站的相关业务信息,如话路业务、2M业务、光芯业务等资料。由于篇幅所限,这里就不详细介绍。
分类统计查询:
在VisualNet系统中,其每个“设备”“线路”都能被检索到。你既可以按区域、部门、楼层进行统计,也可以按类型及属性进行统计。譬如统计ADSS或OPGW类的光缆,你可以在查询窗体中给它指定光缆类型后就能全部找到,或者你也可以在统计报表中进行分类统计,也一样能找到这些光缆。另外,如果光缆出现故障,检测系统指示光缆的断点在37公里处,那么你只需在查询窗体中,为杆塔的“距离机房长度”中输入:36至38公里,系统就能搜索到这些可能出现故障的杆塔。双击这些数据,系统会自动打开相应的杆路图,并通过红色闪烁的方式指示其所处的位置,十分便于故障抢修和故障定位。(如下图三所示)。

(图三:杆路的查询与定位)
连接关系查询
光缆、电缆之间的连接关系追踪,对于维护人员来说是一个巨大的难题。虽然在机房中,我们对每根电缆都按一定的命名规则进行了定义,表示了一定的信息。但是当我们看到一根光纤时,我们都很想清晰形象地了解它的另外一端连到底接了哪个机房?哪个机柜?哪个设备端子上?在VisualNet平台上,系统提供了一个连接关系视图、路由分析、端链路分析等多种查询方式。点击任意一个层面上的任意一根线缆或端口,你就能很清楚地看到这根线缆两端的设备和位置,以及它们各自的属性数据。如下图四所示,我们用“连接关系视图”工具,来查看与“许营”站相连的光缆数量、名称、位置以及每根光缆另外一端的站点名称。
如果此时你打开了细节预览器,那么点击这根“光缆”,你就可以通过红色箭头闪烁指示的方式来定位这根光缆,十分便于您确定这根光缆的位置。

(图四:站点间的光缆连接信息与定位)
当我们设计完项目后,由于系统中包含了很多图纸资料、参数数据以及各种电子文档、维修记录等。为了便于同事共享查询这些信息,我们需要对项目数据进行分发共享。系统主要提供以下两种方式来实现这一目标:
一是:项目打包方式分发
系统会通过项目打包的方式,把当前设计图纸、图库模板、属性数据、绑定的各种文档都一起打包进一个pjz文件。这样你只要复制该文件到其它电脑上,用VisualNet任意一种版本即能打开该文件,并且也能进行各种查询、分析、统计与定位功能,相当方便。项目设计者可以给这个文件设定三种权限,即修改权、只读权、禁止打开。得到这些文档资料的人员只能根据权限来操作。
二是:通过WebServer服务器管理:
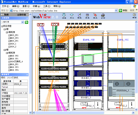
系统提供了WebServer方式来为需要远程查询信息的人员提供服务。如果WebServer能和互联网相连,那么您甚至可以通过无线上网的方式,通过IE浏览器,来查询图纸资料、设备属性、故障位置、光缆连接关系、端口地址以及链路等,并且也能闪烁指示设备线路位置。你还可以把这些项目数据通过授权的方式下载到本机上,用免费的阅读版来打开这些文档(如下图五所示)。

(图五:Web查询与浏览)
如下图六所示的是我们石家庄地区的电力通信资源管理项目的一个截图。目前我们采用了由总到分,先粗后细的方式,实施完成了各个站的布局设计、光缆连接设计、杆路图设计、光缆熔接信息设计、机房机柜布置、设备布局、设备端口连接、配线跳线设计以及通信电源设备布局设计。在图纸设计完成后,我们对各个设备、线路对象进行了数据录入,同时还把我们平时所关心的设备管理技术文档、承载的业务报表、光缆检测数据文档都一起进行了集成整合。
在完成这些任务后,给我们带来最明显的变化是信息查询效率的提高。譬如:点击一个站点,我们就能在属性窗体中弹出该站点的相关信息:业务数据、电压等级、站点经度、纬度、负责人、联系电话、维修单位等信息。
双击该站点,我们就能进入到该站点的设计细节图,包括站点机房的建筑外观图、建筑平面图、机房布局图、机柜布局图。
再次双击机柜图,就可以看到该机柜内每个设备的位置和设备之间的线路连接。点击其中的任意一个设备,您就能看到该设备的各种参数信息,譬如:名称、资产编号、容量等等。
如果我们点击设备图上的任意一根光缆,就能看到该光缆所有具体的技术参数,如:线缆编号、接头位置、芯数、跨距、长度等等。同时还能通过细节预览器,直接查看到光缆两端连接了哪些设备以及设备所处的位置。双击光缆上的“接头盒”,我们就能看到里面光缆之间的配纤配色信息、熔接信息。
通过以上对各个页面对象的操作,我们就能“即点即显”地把关心的数据给调用了出来。极大地提高了我们在设备检修、维护、资产调配、业务管理方面的工作效率,也降低了以前施工信息靠人工记、图纸资料靠手工画、数据参数靠本子记所带来的差错。

(图六:完成的光缆资源管理系统截图)
通过系统的实施,我们对整个系统中的设备资产的管理比以前更加精细透明了。通过按区域或位置统计,我们能很清楚地了解到各个站点有哪些设备?有多少数量?通过按设备类型统计,我们可以了解到每类设备共有多少数量?分布在哪些地方?哪些设备到了更新期?哪些需要定期检修了?每个设备是什么人在管理的?等等。十分便于我们做好投资规划和检修计划,减少了浪费现象的发生。
如果我们按光缆类型分别统计出了整个通信网中OPGW、ADSS、普通光缆的数量,你还可以按饼型图、条型图进行各种型号所占比例分析,如下图七所示。你如果双击了这个报表中的数据,系统就能切换到设计页面并闪烁指示当前这行数据所指示哪根光缆,两端连接了哪些站点或设备?等等。你还可以把这些报表存为Excel、Text、Access、XML、Html等多种格式,供您打印保存或作二次处理。
在VisualNet平台中,图形与数据信息的紧密集成是一个很大亮点。点击设计的图形,您就能看到其数据属性;点击表中的数据,您就能看到其图形外观、所处的位置或相关的连接关系。
在实际应用中,该系统的扩展性也很好。譬如我们新增加了设备,那么只需把图库往机柜布局图上拖放一下,然后输入相关数据、连接好设备之间的线路即可。如果有一天更新了设备,那么只需把原“设备”图替换到新设备模板就能完成相关的信息配置。如果我们在某个地区要新建一个站点,那么只需把站点模板拖到系统图上,输入相关信息、连上“光缆”即可。“拖放式设计”的便捷性始终贯穿了图形制作的全过程。
当然在系统实施后所带来的工作效率的提高还远远不止以上所说的这些,其它的像故障检修辅助信息管理、故障范围覆盖分析、路由分析、故障控制点分析等功能就不在这里一一阐述了。

(图七:光缆的分类统计与光缆的定位)
VisualNet软件本身是一个专供我们开发定制各种设备线路资源管理的开发平台。一般情况下,如果我们要开发一套资源管理系统,需要经历需求调研、代码编写、检测调试、上线试运行、原始数据录入等5个过程。而现在我们省去了最耗时间和精力的前面4个步骤,只需要专注于根据现实的通信网络,把它们画出来并进行数据录入,就完成了系统的实施。其搭积木式的设计方式,十分便于我们我们根据不同区域、不同机房、不同设备进行组合。
目前我们已经成功完成了从广域网的站点管理、光缆管理,一直到机房的通信设备管理、供配电设备管理、设备模板管理和端口管理全过程。由于对项目的实施采用模块化设计和层次化管理方式,所以即使今后设备更换或线路更新,也都能很方便地进行扩展,而这些也都是费用昂贵的GIS类电力通信资源管理系统所无法做到的。
通过本系统的实施,我们很好地把通信系统的设备制图、线路管理、数据管理、路由分析、文档管理和查询定位功能都很好地集成到了一起,做到了资源管理的标准化、规范化。比起常规的资源管理系统的实施,采用VisualNet平台去实现的时间缩短了近80%,投资费用也大大降低,具有很高的推广价值。同时也希望此文能为其他专业的设备线路资源的管理起到一个参考作用。在项目的实施过程中,我们得到了河北省电力公司通信处申金平主任、杨会锋及赵敬民处长的大力支持,同时也得到VisualNet厂商、光缆厂商的大力协助,在此一并表示感谢!(全文完)
参考文献:
[1] SINO-US Group Co.Ltd.,《Design and Application With VisualNet》。Penguin Books Limited,2004。
[2] 刘化君。中文版《网络综合布线》。北京电子工业出版社出版,2006。
[3] 侯福平。《邮电设计技术》通信电源专辑,2007增刊。